Arhitektura
Projekt: Dva arhitekta Zidarić – Kuća unutar kuće: život između četiri atrija

U južnom dijelu Čakovca, unutar strukture grada obilježene dugim, uskim parcelama i kućama zabatom okrenutim prema ulici, nastaje kuća koja suvremenim izrazom reinterpretira lokalno naslijeđe ovoga kraja. Osnovnu zamisao oblikuje urbanistički uzorak nizanja volumena u dubinu parcele, od glavne kuće prema pomoćnim zgradama i dvorištima.

Kuća polazi od arhetipa međimurskih prizemnica referirajući se na njezinu trodijelnu organizaciju prostora: prednja hiža, kuhinja i zadnja hiža, natkrivene dvostrešnim krovom.
Ganjak, prag između unutarnjeg i vanjskog, između svijeta i doma, prerasta u motiv interpretacije. Dekonstrukcija ganjka rezultira novom prostornom logikom koja okuplja unutarnje atrije. Tradicionalni trijem preoblikovan je u niz introvertiranih prostora koji definiraju život kuće iznutra te stvaraju ritam svjetla, sjene i pogleda.

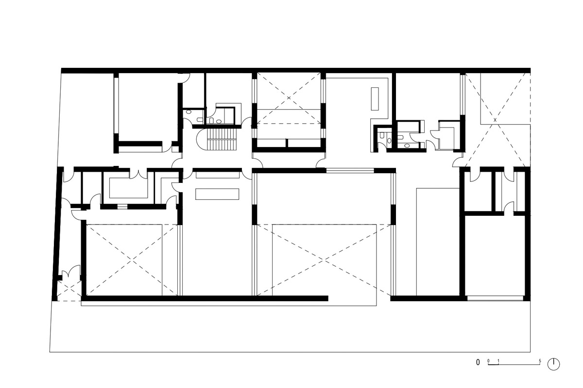
Kuća se pozicionira uz sjevernu stranu među parcele, čime se južna strana otvara prema svjetlu i dvorišnom prostoru. Unutarnja organizacija slijedi longitudinalnu osu duž koje se nižu funkcije ulaza, garaže i servisnih sadržaja, kuhinje i blagovanja, dnevnog boravka i izlaza u vrt.

Taj linearan prolaz oblikuje niz prostornih doživljaja: suženja i proširenja, izmjene svjetla i tame, ritam zatvorenog i otvorenog. U središtu kuće smješteno je stubište skulpturalnog karaktera koje postaje fokus u prostoru i mjera vertikalne dinamike kuće.

Pravokutni volumen prizemlja ispunjen je nizom četiriju atrija. Svaki atrij nosi vlastitu atmosferičnu temu. Prvi atrij, povezan s bazenom i prostorima wellnessa čini intimnu spa zonu.

Drugi, smješten između bazena i dnevnog boravka, natkriven je velikom terasom i postaje središnji prostor okupljanja, zona boravka.
Treći atrij, između servisnog dijela i dnevne zone propušta svjetlo duboko u prostor, pa boravak živi između dva vrta. Četvrti atrij povezuje ljetnu kuhinju s prostorima za druženje i roštilj, osvjetljava prateće sadržaje i dovršava unutarnju topografiju kuće.

Na katu su smještene spavaonice. Kat je sveden na minimum i zauzima tek tridesetak posto prizemne tlocrtne površine čime čuva siluetu tradicionalne prizemnice s potkrovljem.
Kuća je introvertirana cjelina koja se otvara prema vlastitom krajoliku. Zidovi definiraju granicu i identitet. Slojevita membrana koja odvaja i povezuje. Zidovi materijaliziraju pojam praga između svijeta i doma, prijelaza i introspekcije.
Zid od opeke, prema graditeljskoj tradiciji pojačava slojevitost i gradi kontinuirani omotač.

Njegova tekstura, ton i masa stvaraju taktilni zapis mjesta. Pojas zida membranski obavija cijeli volumen. Ovojnica je aktivni element arhitektonskog izraza, uspostavlja tihi dijalog s urbanim kontekstom.

Ono što je u tradicionalnoj tipologiji nastajalo postepeno dograđivanjem i povezivanjem volumena, ovdje je pretočeno u kompaktni volumen s nizom unutarnjih dvorišta.
Time kuća postaje suvremeni pandan tradicijskoj parceli, jedan volumen koji u sebi nosi sve međuodnose. Iza zida, u miru unutarnjih dvorišta, odvija se život koji pripada ovom prostoru, podneblju i vremenu.

Fact sheet & Credits
- Lokacija: Čakovec, Hrvatska
- Godina projektiranja: 2022.
- Godina dovršetka gradnje: 2025.
- Autor: Dva arhitekta Zidarić d.o.o.
- Autorski tim: Zoran Zidarić, Anja Žugčić, Jure Čudina
- Namjena: Stambena kuća
- Fotografija: Robert Leš
Autor teksta: Zoran Zidarić, d.i.a. Dva arhitekta Zidarić d.o.o.
-
Promo4 tjedna prije
Fotonaponski sustav kao sastavni dio arhitektonskog koncepta
-
Novosti4 tjedna prije
illbruck sa inovacijama u području brtvljenja i izolacije na Fensterbau Frontale 2026
-
Promo3 tjedna prije
GROHE Grohtherm Aqua Tiles – Termostat za preciznu kontrolu podešavanja tuša
-
Arhitektura3 tjedna prije
projekt: Synthesis Quatro – Suptilna arhitektura, taktilni doživljaj: Vila Marušići
-
Novosti3 tjedna prije
GBC Connect Forum – Industrija i država u dijalogu za zelenu tranziciju
-
Promo2 tjedna prije
Europska renesansa s VANDEX hidroizolacijom
-
Promo1 tjedan prije
LAUFEN predstavlja VITREON čelik: novi sklad materijala za suvremenu kupaonicu
-
Promo2 tjedna prije
ArchyEnergy 2026 – Platforma koja spaja arhitekturu, dizajn, industriju i ljude
